Industrijska segmentna vrata
Industrijska segmentna vrata predstavljaju idealno rešenje za zatvaranje industrijskih objekata u specifičnim situacijama gradnje. Izrada u dimenzijama po zahtevu i korišćenje specijalnih komponenti omogućava raznovrsne tehničke aplikacije.
Karakteristike MCA rezidencijalnih segmentnih garažnih vrata
- Moderna tehnologija proizvodnje za ugrdnju vrata u zgradi
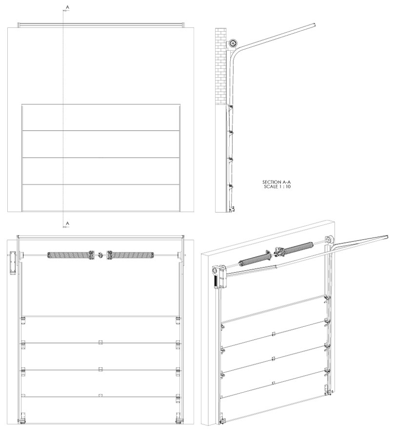
- Standardni sistemi podizanja
- LHF sistem podizanja (Low Headroom Front) Torzione opruge postavljenje na gredi
- LHR sistem podizanja (Low Headroom Rear) za postavljanje opruga iza vođica
- FTR sistem podizanja (Follow The Roof), gde je potrebno da klizna vođica prati nagib krova
- HL sistem podizanja (High Lift), gde je potrebno da se klizna vođica izdigne od otvora (povišeno podizanje)
- HL-FTR sistem vođenja (High Lift + Follow The Roof), gde je potrebno da se klizna vođica izdiže vertikalno a zatim da prati ugao nagiba krova.
- FVL sistem podizanja (Full Vertical) , gde se vođica izdiže vertikalno u potpunosti, prateći zid
- Optimalna termo-izolacija je postignuta pomoću
- sendvič panela, debljine 40mm
- bočnih zaptivki
- dvostruke zaptivke na dnu vrata
- Udobnost, sigurnost i bezbednost
- Električno vođenje pomoću daljinskog upravljača, čija šifra ne može biti kopirana
Sigurnosni sistem protiv pucanja opruga - Sigurnosni sistem protiv ukleštenja prstiju između panela
- Sigurnosni protivprovalni sistem
- Sigurnosna ivica
- Sigurnosni sistem fotoćelija
- Mogućnost otvaranja u slučaju nestanka struje
- Garantovano funkcionisanje do 15 000 / 25 000 ciklusa
- Električno vođenje pomoću daljinskog upravljača, čija šifra ne može biti kopirana
- Spektar boja i dodaci
- Postoji preko 40 tipova panela različitih standardnih boja i modela
- Mogućnost ostakljenja u garažnim vratima
- Mogućnost integrisanja pešačkih vrata sa niskim pragom
Pregled
Sistemi podizanja
Boje panela
Postoji preko 20 nijansi i imitacija drveta













